Veřejná zakázka: VYBAVENÍ GASTRONOMICKÉHO PROVOZU NEMOCNICE ČESKÉ BUDĚJOVICE, a.s.

Informace o veřejné zakázce

fáze zadávacího řízení Zadáno
Zakázka byla zadána.
DBID: 1706
Systémové číslo: P23V00000265
Evidenční číslo zadavatele: 022C/2023/MM
Dle zákona: č. 134/2016 Sb.
Evidenční číslo ve VVZ: Z2023-032722
Datum zahájení: 24.07.2023
Nabídku podat do: 25.08.2023 10:00

Název, druh veřejné zakázky a popis předmětu

  • Název: VYBAVENÍ GASTRONOMICKÉHO PROVOZU NEMOCNICE ČESKÉ BUDĚJOVICE, a.s.
  • Druh veřejné zakázky: Dodávky

Stručný popis předmětu:
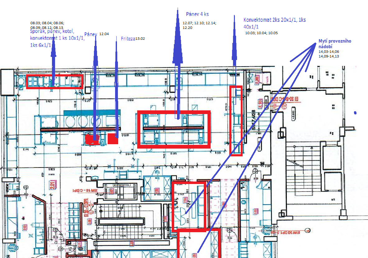
Předmětem veřejné zakázky je gastronomické vybavení části varny a linka pro výdej jídel pro zaměstnaneckou jídelnu stravovacích služeb v Nemocnici České Budějovice, a.s.

Druh zadávacího řízení, předpokládaná hodnota

  • Druh řízení: otevřené řízení
  • Režim veřejné zakázky: nadlimitní
  • Předpokládaná hodnota: 12 000 000 Kč bez DPH

Místo plnění

  • České Budějovice

Zadavatel

  • Úřední název: Nemocnice České Budějovice, a.s.
  • IČO: 26068877
  • Poštovní adresa:
    B. Němcové 585/54
    370 01 České Budějovice
  • Název oddělení: bez zařazení
  • Id profilu zadavatele ve VVZ: Z2018-030259

Adresa kontaktního místa

Nabídky, resp. žádosti o účast podávat na:
prostřednictvím elektronického nástroje E-ZAK (https://ezak.jihnem.cz)

Kontakt

Položky předmětu (CPV)

Zadávací dokumentace

Vysvětlení, doplnění, změny zadávací dokumentace

Veřejné dokumenty

Formuláře

URL odkazy

Plnění smlouvy na základě veřejné zakázky