Zadávací dokumentace

Zadávací řízení: VYBAVENÍ GASTRONOMICKÉHO PROVOZU NEMOCNICE ČESKÉ BUDĚJOVICE, a.s.

Informace o dokumentu

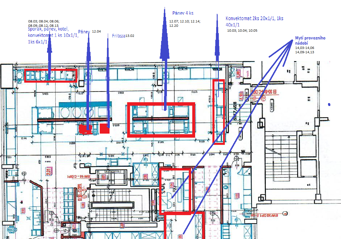
Název: Příloha č. 7 - Původní gastro přesun
Popis: P7ZD - Původní gastro přesun
Uveřejnění dokumentu na Profilu: 27.07.2023 12:10:52

Aktuální verze souboru

Jméno souboru: Obrázek PNG P7ZD Původní gastro - přesun.png
Velikost: 950,14 KiB
Aktuální verze souboru: 26.07.2023 11:30:12
Otisk MD5: 93139561fa7ea62453ffa49072b74cb4
Otisk SHA256: 3c9ad043c781013d739a6a371508523ba3ee3b681eeb8eefd1bf33a572975568

Historie souboru

Datum Název Popis Typ dokumentu Jméno souboru Velikost
V 26.07.2023 11:30:12 Příloha č. 7 - Původní gastro přesun P7ZD - Původní gastro přesun zadávací dokumentace - P7ZD Původní gastro - přesun.png 950,14 KiB